Bauherrenfachberatung
Menü
Kontakt
Preisinfo
Aktuelles
Impressum
Häuser
klassische Einfamilienhäuser
2-geschossige Einfamilienhäuser
Bungalows
Stadtvillen
Bauhaus
Aktionshäuser
Doppel- / 2Fam.-Häuser
Energiesparen & Haustechnik
Aktionshaus B96
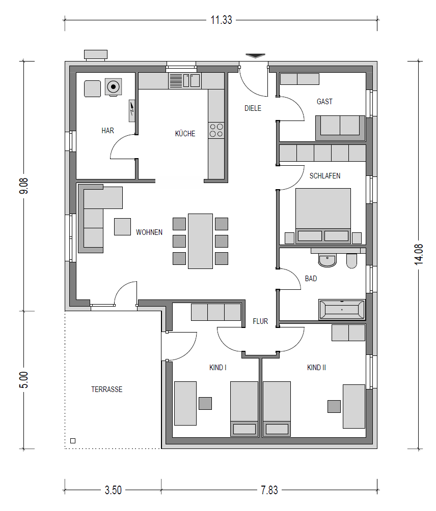
Wohnen, Küche, Kind I, Kind II, Schlafen, Gast, Bad, HAR, Diele, Flur, Terrasse
Details:
Walmdach 25°, Putzfassade
Netto-Grundfläche:
ca. 132,6 m² (nach DIN277)
Wohnfläche:
ca. 124,6 m² (nach WoFlV)
Ausstattung
Ausstattungsvariante
zurück zur Hausübersicht
Preisinfo anfordern
Grundriss
Erdgeschoss
Wohnfläche
Wohnen
32,22 qm
Schlafen
11,19 qm
Kind I
14,01 qm
Kind II
14,53 qm
Gast
7,70 qm
Küche
11,97 qm
Bad
8,09 qm
Diele
5,60 qm
Flur
2,19 qm
HAR
8,12 qm
Gesamt
124,60 qm
zurück zur Hausübersicht
Preisinfo anfordern