Aktionshaus C630


Wohnen, Küche, Kind I, Kind II, Schlafen, Gast, Bad, Gäste-WC, HAR, Diele, Flur

Details:
Satteldach 25°

Netto-Grundfläche:
ca. 164,3 m² (nach DIN277)
Wohnfläche:
ca. 159,5 m² (nach WoFlV)


Ausstattung
Ausstattungsvariante

zurück zur Hausübersicht     Preisinfo anfordern
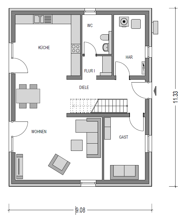
Grundriss Erdgeschoss
Erdgeschoss Wohnfläche
Wohnen/Essen 30,67 qm
Küche 16,21 qm
Gast 10,37 qm
Gäste-WC 4,60 qm
Diele 8,43 qm
Flur I 2,28 qm
HAR 7,63 qm
EG Gesamt 80,19 qm

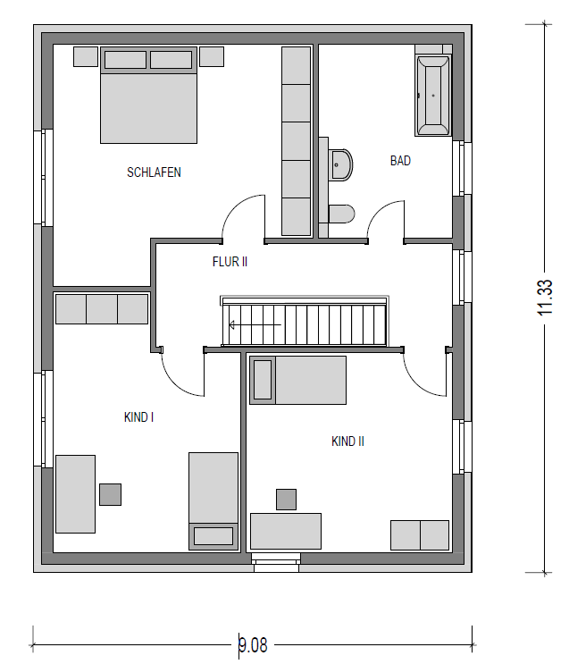
Grundriss Obergeschoss
Obergeschoss Wohnfläche
Schlafen 23,29 qm
Kind I 18,30 qm
Kind II 17,36 qm
Bad 10,87 qm
Flur II 9,48 qm
OG Gesamt 79,30 qm

zurück zur Hausübersicht     Preisinfo anfordern