Alto 520


Wohnen, Küche, Kind I, Kind II, Schlafen, Ankleide, Gast, Bad, Gäste-WC, HAR, Diele, Flur

Details:
Satteldach 45°, 90 cm Drempel

Netto-Grundfläche:
ca. 146,0 m² (nach DIN277)
Wohnfläche:
ca. 127,8 m² (nach WoFlV)


Ausstattung
Ausstattungsvariante

zurück zur Hausübersicht     Preisinfo anfordern
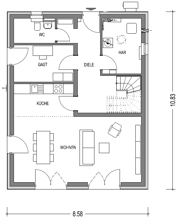
Grundriss Erdgeschoss
Erdgeschoss Wohnfläche
Wohnen/Essen 31,68 qm
Küche 7,16 qm
Gast 8,23 qm
WC 3,54 qm
Diele 13,62 qm
HAR 7,90 qm
EG Gesamt 72,13 qm

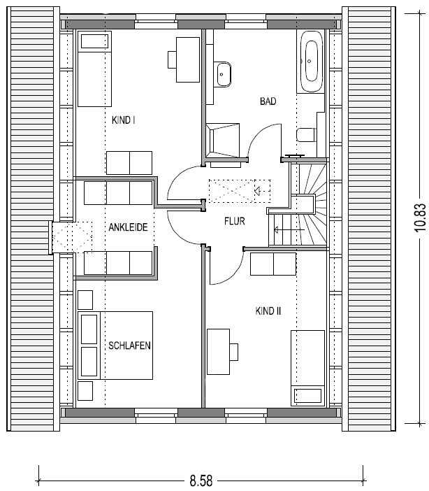
Grundriss Dachgeschoss
Dachgeschoss Wohnfläche
Schlafen 12,53 qm
Ankleide 4,53 qm
Kind I 12,63 qm
Kind II 12,10 qm
Bad 9,384 qm
Flur 4,50 qm
DG Gesamt 55,67 qm

zurück zur Hausübersicht     Preisinfo anfordern