Alto 742


Wohnen, Küche, Kind I, Kind II, Schlafen, Gast, Bad, Gäste-WC, HAR, Diele, Flur

Details:
Satteldach 45°, 90 cm Drempel

Netto-Grundfläche:
ca. 196,5 m² (nach DIN277)
Wohnfläche:
ca. 178,6 m² (nach WoFlV)


Ausstattung
Ausstattungsvariante

zurück zur Hausübersicht     Preisinfo anfordern
Grundriss Erdgeschoss
Erdgeschoss Wohnfläche
Wohnen/Essen 34,76 qm
Küche 16,92 qm
Gast 12,93 qm
WC 3,53 qm
Diele 18,86 qm
HAR 10,55 qm
EG Gesamt 97,55 qm

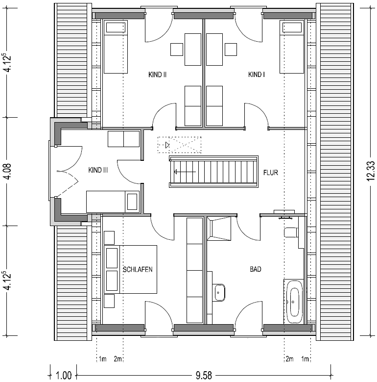
Grundriss Dachgeschoss
Dachgeschoss Wohnfläche
Schlafen 14,56 qm
Kind I 14,31 qm
Kind II 14,31 qm
Kind III 9,80 qm
Bad 13,44 qm
Flur 14,67 qm
DG Gesamt 81,09 qm

zurück zur Hausübersicht     Preisinfo anfordern