Arcus 150

Offener Wohn-/Essbereich, Küche, Kind I, Kind II, Schlafen, Ankleide, Gast, Bad, Gäste-WC, HAR, Abstellraum, Diele, Flur

Details:
Zeltdach 25°, 2 raumhohe Geschosse

Netto-Grundfläche:
ca. 151,7 m² (nach DIN277)
Wohnfläche:
ca. 148,5 m² (nach WoFlV)


Ausstattung
Ausstattungsvariante

zurück zur Hausübersicht     Preisinfo anfordern
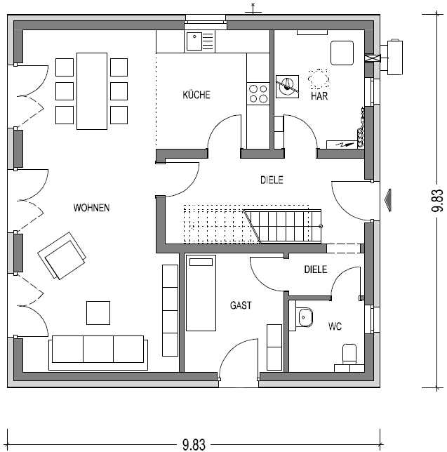
Grundriss Erdgeschoss
Erdgeschoss Wohnfläche
Wohnen 34,12 qm
Küche 9,27 qm
Gast 8,28 qm
WC 3,67 qm
Diele 11,79 qm
HAR 7,31 qm
EG Gesamt 74,44 qm

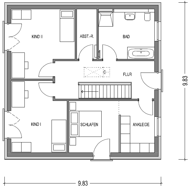
Grundriss Obergeschoss
Obergeschoss Wohnfläche
Schlafen 10,31 qm
Ankleide 6,94 qm
Kind I 14,79 qm
Kind II 15,91 qm
Bad 10,63 qm
Abstellraum 3,82 qm
Flur 11,62 qm
DG Gesamt 74,02 qm

zurück zur Hausübersicht     Preisinfo anfordern