Arcus 152

Offener Wohn-/Essbereich, Küche, Kind I, Kind II, Schlafen, Ankleide, Gast, Bad, Gäste-WC, HAR, Diele, Flur

Details:
Zeltdach 25°, 2 raumhohe Geschosse

Netto-Grundfläche:
ca. 152,1 m² (nach DIN277)
Wohnfläche:
ca. 147,2 m² (nach WoFlV)


Ausstattung
Ausstattungsvariante

zurück zur Hausübersicht     Preisinfo anfordern
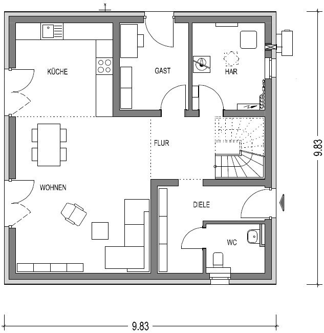
Grundriss Erdgeschoss
Erdgeschoss Wohnfläche
Wohnen 27,54 qm
Küche 11,93 qm
Gast 7,89 qm
WC 3,33 qm
Diele 7,97 qm
Flur 6,78 qm
HAR 8,09 qm
EG Gesamt 73,53 qm

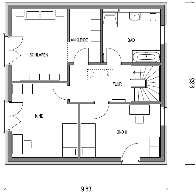
Grundriss Obergeschoss
Obergeschoss Wohnfläche
Schlafen 14,95 qm
Ankleide 6,21 qm
Kind I 17,34 qm
Kind II 15,87 qm
Bad 11,05 qm
Flur 8,24 qm
DG Gesamt 73,66 qm

zurück zur Hausübersicht     Preisinfo anfordern