Cumulus 560 / 562

4 Zimmer, Küche, Bad, Gäste-WC, Diele, Flur, HAR

Details:
Walmdach 25°, Putzfassade

Netto-Grundfläche Cu 560:
ca. 98,1 m² (nach DIN277)
Wohnfläche:
ca. 99,1 m² (nach WoFlV)

Netto-Grundfläche Cu 562:
ca. 98,1 m² (nach DIN277)
Wohnfläche:
ca. 98,8 m² (nach WoFlV)


Ausstattung
Ausstattungsvariante

zurück zur Hausübersicht     Preisinfo anfordern
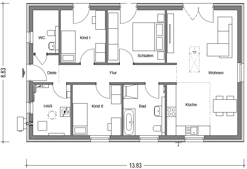
Grundriss Cumulus 560
Erdgeschoss Wohnfläche
Wohnen 21,84 qm
Schlafen 15,68 qm
Kind I 9,72 qm
Kind II 10,56 qm
Küche 6,01 qm
Bad 8,41 qm
WC 5,80 qm
Diele 7,52 qm
Flur 6,48 qm
HAR 6,64 qm
Gesamt 98,66 qm
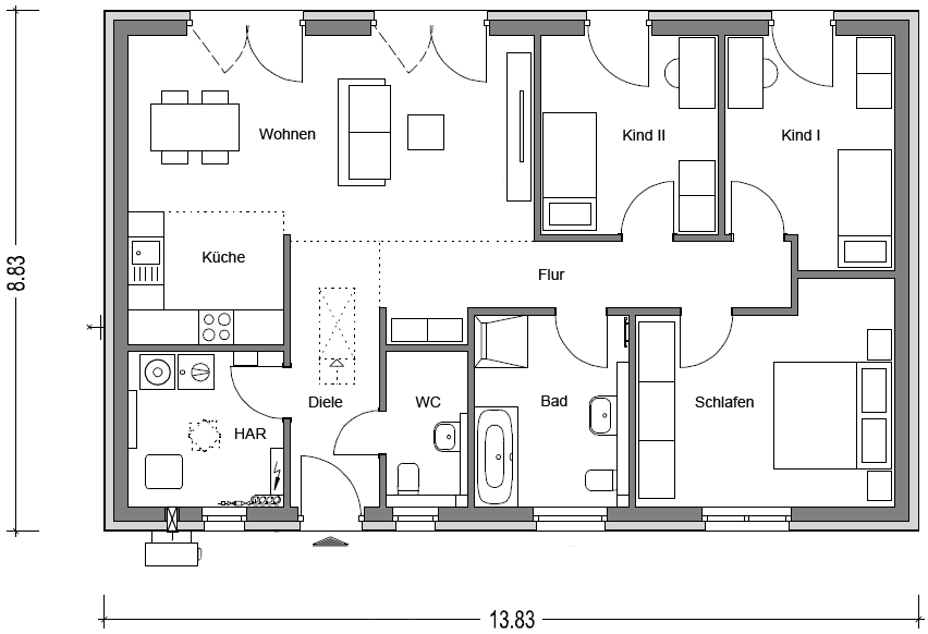
Grundriss Cumulus 562
Erdgeschoss Wohnfläche
Wohnen 26,12 qm
Schlafen 12,28 qm
Kind I 9,77 qm
Kind II 10,03 qm
Küche 9,11 qm
Bad 8,41 qm
WC 4,38 qm
Diele 2,79 qm
Flur 8,28 qm
HAR 7,61 qm
Gesamt 98,78 qm

zurück zur Hausübersicht     Preisinfo anfordern