Cumulus 960 / 962

3 - 4 Zimmer, Küche, Bad, Gäste-WC, Ankleide, Diele, Flur, HAR, Terrasse

Details:
Walmdach 25°, Putzfassade

Netto-Grundfläche Cumulus 960:
ca. 131,90 m² (nach DIN277)
Wohnfläche:
ca. 123,89 m² (nach WoFlV)


Ausstattung
Ausstattungsvariante

zurück zur Hausübersicht     Preisinfo anfordern
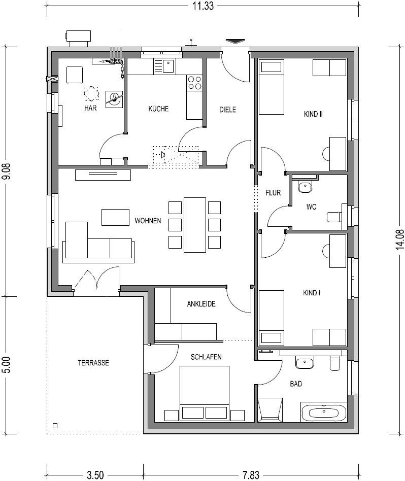
Grundriss Cumulus 960
Erdgeschoss Wohnfläche
Wohnen 30,35 qm
Schlafen 10,70 qm
Ankleide 6,74 qm
Kind I 13,24 qm
Kind II 13,24 qm
Küche 10,52 qm
Bad 8,41 qm
WC 3,75 qm
Diele 6,67 qm
Flur 2,19 qm
HAR 9,08 qm
Terrasse 9,00 qm
Gesamt 123,89 qm

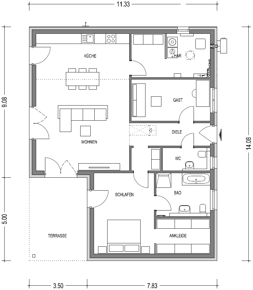
Grundriss Cumulus 962
Erdgeschoss Wohnfläche
Wohnen 31,49 qm
Schlafen 17,82 qm
Ankleide 6,82 qm
Gast 11,73 qm
Küche 15,52 qm
Bad 8,41 qm
WC 3,87 qm
Diele 9,05 qm
HAR 12,17 qm
Terrasse 9,00 qm
Gesamt 125,88 qm

zurück zur Hausübersicht     Preisinfo anfordern